Pool Design Center

Custom Pool Design/Plans Center

In order to ensure the success of the custom pool project, a significant amount of design and planning is necessary. Throughout the custom pool design process, you will encounter numerous decisions to be made, such as: determining the specific type and size of the custom pool, establishing the position of the pool in relation to the house, selecting the appropriate location for the pool equipment, and more.

Getting the custom pool designed with working pool plans is a necessary foundational step when building a custom pool:

When you are Serious about getting a Custom Pool...   It's Time to get some Pool Plans designed.

We are - Pool Design FIRST. Everything stems from the design of the custom pool and where it's going to go in your yard. At a minimum we need designs for the pool ( Pool Layout Plan *required ) and for the pool location ( Pool Placement Plan *required ). Once your custom pool has been designed for your yard we will be able to a make price quote appropriately.

We offer several other pool plans that may also be needed ( along with the Pool Layout Plan & Pool Placement Plan ): the Pool Excavation Plan, the Pool Engineering Plan, the Plumbing Layout Plan, Electrical Layout Plan and the 3D Rendering Pool Plan.




The Custom: Pool Layout Plan is a detailed drawing of the custom pool showing both the top view and the side view with the following specifications:

  • Length
  • Width
  • Depth
  • Area
  • Volume
  • Make
  • Model

St George Pools - Custom Pool Plan



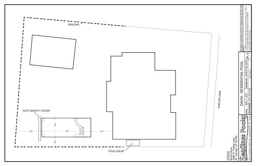
The Custom: Pool Placement Plan is a detailed drawing of the property site plan (plot plan or plat) that displays the custom pool location and distances from the custom pool to the various surrounding structures on the property; specifically the following items:

  • Pool Location
  • Pool Equipment Location
  • Distance from House
  • Distance from Property Lines
  • Fences/Gates
  • Auto Safety Cover

St George Pools - Custom Pool Placement Plot Plan



The Custom: Pool Excavation Plan is a detailed drawing that displays how to excavate a matching hole for the custom pool to nest within properly and uniformly. The Custom: Pool Excavation Plan consists of the following items:

  • Pool Orientation
  • Dig Depths
  • Dig Slopes
  • Overdigs
  • CenterLine
  • Sand Bed
  • Waters Edge

St George Pools - Custom Pool Excavation Plan



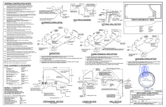
The Custom: Pool Engineering Plan is a detailed plan representing the proper construction methods and options for the custom pool. The different engineering specifications are:

  • General Construction Notes
  • Pool Properties
  • Pool Equipment
  • Coping Options
  • Drain Options
  • Hand Rail Options
  • Electric Diagram
  • SVRS Diagram

St George Pools - Custom Pool Engineering Plan



The Custom: Plumbing Layout Plan is a detailed plan laying out the locations for the specific plumbing lines for the custom pool. The plumbing lines required are the skimmer lines and return lines, there are many types of plumbing lines like listed here:

  • Skimmer
  • Returns
  • Vacuum/Drain
  • Main Drains
  • Jets
  • Air/Bubbles
  • Water Falls
  • Water Slides

St George Pools - Custom Pool Engineering Plan



The Custom: Electrical Layout Plan is a detailed plan laying out the locations for the specific electrical wiring for the custom pool. The electrical wiring needs to be ran through water tight fully glued conduit. Typical electrical items are:

  • Pool Lights
  • Safety Cover Motor
  • Grounding/Bonding
  • Outdoor Landscape Lights
  • Pool Equipment
  • Switches
  • Controls
  • Automation
  • Chlorinators

St George Pools - Custom Pool Engineering Plan



In recent times, 3D rendering has emerged as an extremely efficient method for crafting and establishing visually appealing advertisements that have the ability to captivate a larger audience. The term "3D rendering" pertains to a technical procedure wherein advanced imaging of the ultimate product is created.

The 3D model is captured through graphic imaging, incorporating illustrations and lighting, and subsequently undergoes computer processing utilizing specialized 3D software to generate the final products. The demand for 3D rendering design services has witnessed a significant surge in popularity in recent years, particularly within the real estate and construction sectors.

St George Pools - Custom 3D Rendering Pool Plans






IMPORTANT: THREE THINGS YOU NEED WHEN BUILDING POOL. Using these three, figure out what you are going to do and do it. Minimize change orders. Minimize on construction costs. Get your pool done on time.

  • ONE - PLANS (Design FIRST)
  • TWO - TIMELINE (Have a schedule)
  • THREE - BUDGET (Know your limit)